1.幕墙连接系统的改进: 因常规幕墙材多为
铝材,我们对铝格比较熟悉,并且铝较软,容易加工,所以我们首先考虑用铝材
开模,但经了解,因为此料为专用,开模费需自己承担,并且,因钢幕墙分格较大,
连接件承重较大,铝材
强度较低,铝材
截面必须较大,费用较高,而且因幕墙主要材料为钢材,钢铝之间存在接触
腐蚀,必须做好
防腐处理。后经同钢配件合作单位探讨协商,决定用高强
钢板折板,再用
热浸镀锌处理。经多次试做试装,全部连接件均采用了钢构件,结构结合紧密,使用效果良好。
2.玻璃支撑系统的变更:原设计采用JANSHEN系统玻璃支撑钢钉承重,辅以铝质支撑条扩大支撑断面,专用性较强,经研讨论证,决定改用100×50×10的热浸
镀锌钢板,先把钢板与幕墙横梁
焊接,然后表面进行
氟碳喷涂,再辅以100×35×5的硬质
塑料垫块,既能满足规范要求,也能达到设计要求,经济合理,实用方便。
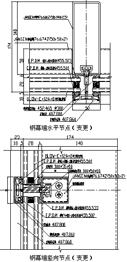
3.横向
压板内侧
密封胶条安装方向的调整:原JANSHEN系统横向内侧
密封胶条批水带安装位置位于玻璃支撑钉之下(见图),引导节点
渗水沿内压板下侧
排水器排除。如此安装,需在紧固钉及玻璃支撑钉穿越内
密封带处打密封胶,点多量大;变更安装位置后,可以绕开玻璃支撑,仅穿过紧固钉,减少了穿洞量及穿洞面积,特别是在将玻璃支撑钉更改为玻璃支撑块之后,避免了变更带来的负面效果。

三、质量控制措施
1.防腐处理:铝合金玻璃幕墙之所以能在较短时间内得到大量推广应用,其主要原因就在于铝合金性能稳定,不易因被腐蚀而影响正常使用,其
表面处理简单易行,耐久实用。钢结构幕墙因钢材的易腐蚀性,为了满足使用要求,确保安全使用,常要求将钢结构的材料壁厚加大,留足余量,并做好表面防腐处理。瑞士JANSHEN钢结构幕墙其主要结构体系立柱与横梁的壁厚均为2.5mm,虽然其自身材质及表面处理均较高,能够满足使用要求,但因幕墙构件存在一个从加工、运输、组装及现场保护等多道工序,加上其在现场的
分散性,现场情况、人员等的复杂性、多变性。必须特别注意其防腐处理,确保幕墙结构在其寿命期内的安全可靠。
A.工艺流程控制:JANSHEN钢构
型材到厂后,必须先在工厂内,严格按照下料加工图进行下料、加工、
喷涂,并且必须保证下料的
精度及打孔位置、尺寸的精确,杜绝材料到场后出现因尺寸等与现场不符而进行重新加工的现象。必须将基础工作做好,确保各种数据的准确性、协调性和统一性。
B.喷涂质量控制:在喷涂前应首先进行材料加工质量的全面检查,查尺寸、查孔位、查焊接质量(钢构型材必然涉及材料焊接)、查表面
打磨等处理,在明确无误的情况下再进行喷涂处理。在喷涂的时候,必须保证,所有型材外露表面必须全部喷涂到位,如材料切口、孔洞四周、焊缝位置等;
C.成品防护:工厂内加工、喷涂完成后,幕墙构件还要通过运输、存放、安装等工序,才能组成一幅幕墙整体,在此过程中必须注重材料的运输包装、上下车搬运、现场堆放、安装施工,成品防护等工序工作,避免钢构件的后期损害,确保
表面喷涂效果。如果因不慎引起表面质量的损坏,应进行即时的防护、补涂。
2.
防渗控制:幕墙防渗是
建筑幕墙工程最基本的性能与使用要求,是客户最基本的需要,也是幕墙施工质量好坏的最直接体现,因此必须做好幕墙的防渗处理工作。幕墙防渗效果的决定因素是其防渗基理,最直接地影响因素是幕墙施工质量的好坏。防渗控制必须从设计原理入手,从施工控制着眼,完善各阶段的综合控制。
A.节点设计:JANSHEN钢
结构玻璃幕墙系统,是一种全新的幕墙系统,它引入了一种全新的幕墙防渗理念,区别于一般幕墙的一道防渗,它采用双层防渗原理,将幕墙
渗漏的可能性降到最低,并将等压腔设在了幕墙结构的外层,将可能的微量渗漏排到了室外。
上一页123下一页